26 maio Requisitos para Instalação e Ventilação de Transformadores à Seco
Transformadores do tipo seco devem ser instalados sobre bases devidamente niveladas e capazes de suportar o seu peso.
Quando o transformador for equipado com rodas, certifique-se que o equipamento será apoiado igualmente em seus pontos-base, a fim de assegurar sua estabilidade e evitar qualquer deformação.
Ao instalar o transformador, os seguintes fatores devem ser cuidadosamente levados em conta:
- Deve haver um espaçamento mínimo de 0,5 m entre um transformador e outro, e entre o transformador e toda a parede adjacente, a fim de facilitar o acesso para inspeção e ventilação, dependendo, no entanto, das dimensões de projeto e das tensões envolvidas;
- A sala onde o transformador será instalado deve ser bem ventilada, assegurando uma ventilação natural adequada, uma vez que este é um parâmetro essencial para o bom desempenho do transformador a seco.
É importante que as entradas de ar estejam localizadas na parte frontal do transformador, perto da parte inferior, e as saídas de ar na parte de trás do transformador, com aberturas suficientemente grandes para permitir uma circulação de aprox. 2,5 metros cúbicos de ar por minuto / kW de perda . (Veja o exemplo de cálculo abaixo).
![]() |
| Cursos NR10 Online! Conheça: www.topeletrica.com.br |
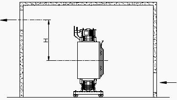
Uma ventilação adequada na sala de transformador irá lhe conceder a vida útil esperada, seja em operação de regime contínuo ou com sobrecargas momentâneas.
![]() |
| Fig. 1 – Exemplo de ventilação natural |
Como muitas vezes a ventilação natural não é suficiente, os ventiladores podem ser instalados para aumentar o fluxo de ar na sala de acordo com a Figura 2, ou, de preferência, adotar a refrigeração com AC na sala onde o transformador irá operar.
![]() |
| Exaustor Industrial Axial – Ex: 315 m³/h |
Atenção! Se a sala tiver ar-condicionado, certifique-se que não irá incidir diretamente sobre o transformador, caso contrário, poderá ocorrer condensação de água sobre ele podendo resultar na queima do transformador.
![]() |
| Fig. 2 – Sala com ventilação forçada |
Para calcular o tamanho aproximado das aberturas, ou o fluxo de ar necessário, a seguinte expressão para a sala pode ser utilizada, considerando-se uma diferença de 15°C entre o ar de entrada e saída.
onde:
Pt = perdas totais do transformador a 115°C [kW]
S = superfície inferior abertura [m²]
S’ = superfície abertura superior [m²]
H = distância medida entre o meio da altura do transformador e o meio da a abertura superior para a saída de ar [m]
V = volume de ar de arrefecimento [m³/min]
![]() |
| Tabela de perdas típicas de Trafos a óleo e a secos |
Exemplo: Instalação de dois transformadores do tipo seco 2.000 kVA
Perdas Totais Típicas para trafos de 2MVA à 115ºC = aprox. 27kW
Distância H entre o meio da altura do transformador e o meio da abertura de saída superior do ar: 1,5 m
A partir da área calculada, sabemos que a instalação de ventilação forçada na sala será necessária, pois desta forma as aberturas deverão ser muito grandes.
A vazão mínima dos ventiladores será:
Aviso! Se o transformador está equipado carenagem de proteção, não a substitua por outra, pois a ventilação poderá não ser adequada.
![]() |
| Cursos NR10 Online – Básico / Reciclagem. Válido em todo o Brasil |
Fonte:











julio flores
Postado em 16:13h, 29 maiomagnifica informacion
TOP Elétrica
Postado em 22:21h, 05 junhoAgradecemos.
ALCIDES WATZKO
Postado em 09:56h, 29 outubroMUITO AGRADECIDO PELA MARAVILHOSA EXPLICAÇÃO, ME FOI DE EXTREMA VALIA!